Stunning 3-Room Apartment in the Heart of Berlin – Prime Location, Luxury Living!
Available from: 2026-04-03
Description
HOUSE:
Situated in a quiet backyard and on the 3rd floor, this apartment offers a serene and tranquil atmosphere, perfect for those seeking a peaceful retreat from the bustling city life.
APARTMENT:
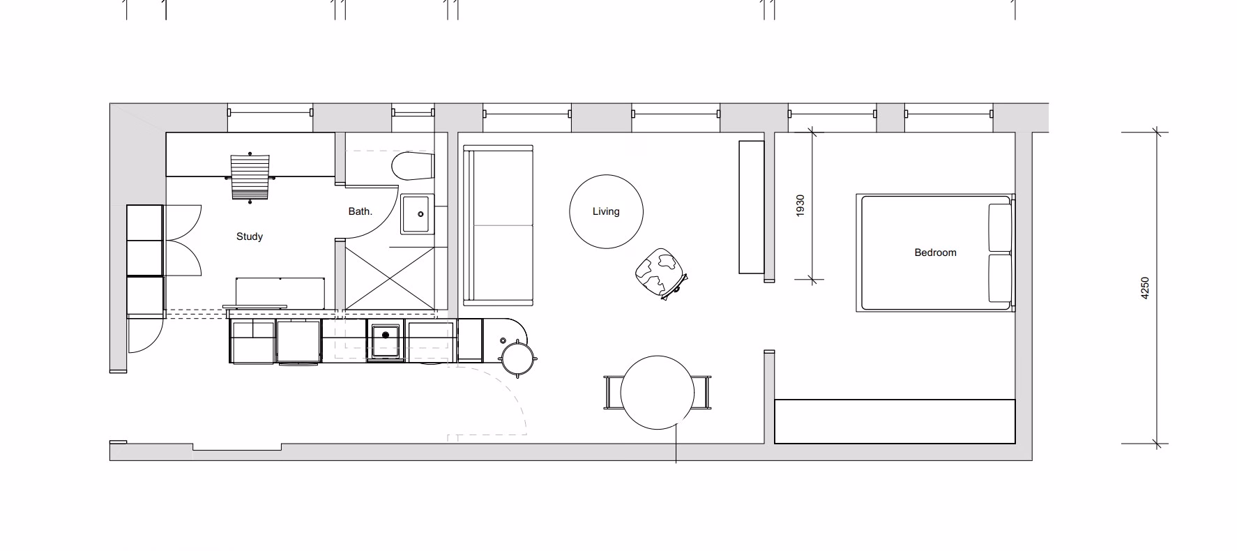
Welcome to this charming apartment located in the heart of Berlin Moabit. This well-appointed apartment offers a comfortable living space with one bedroom and a separate office, making it an ideal choice for professionals or couples seeking a peaceful and productive environment.
As you step inside, you will immediately notice the beautiful wooden floors that add warmth and character to the space.
The apartment is equipped with a smart TV, allowing you to enjoy your favorite shows and movies in high definition. The living room features a comfortable sofa bed, providing additional sleeping space for guests or a cozy spot to relax after a long day.
To ensure a smooth move-in process, the landlord’s confirmation (Wohnungsgeberbestätigung) is included, giving you the necessary documentation for registration purposes.
AREA:
Despite its peaceful location, the apartment enjoys a central position, with the river bank just a short stroll away. There are many cafes, restaurants, bars and shops just around the corner. Additionally, the parliament building and main station are conveniently reachable within a mere 15-minute commute, making it an excellent choice for those who value both tranquility and accessibility.
Fridge
Oven
StovePublic Transport
S-Bahn S5,S7
Bellevue
5 min. walk
U-Bahn U9
Turmstr.
5 min. walk

















































